案例风格
案例户型
案例面积
这套案例,其实原始结构并不是很好,设计师从改善结构入手,和业主一起,将他们喜欢的元素一一添加进来,打造了这个让人特别想回家的家。 成品出来,清新、明亮、舒适,从家具到色彩,每一样东西、每一个元素,填充进家里的都充满艺术感。
一走进入户门,就能感觉到整体风格色彩柔和、线条简洁,整个家丰富但不杂乱。
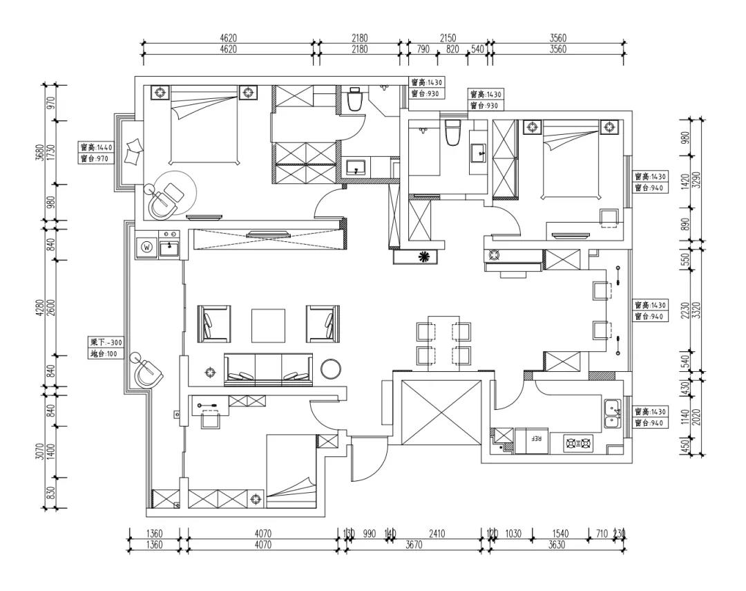
这套房子原来的入户门正对主卧门,业主很不喜欢。设计师经过对墙体检测后,巧妙的将主卧门移到另外一侧的墙面,完美避开了两门相对的尴尬。
同时,在玄关一侧增加了卡座式壁柜,镂空的中部,可以挂着外套、背包等东西,也方便坐着换鞋和稍微休息,功能性突出。


进门的黑板墙,也是业主的很喜欢的一个角落,日常涂鸦、生活照片,都可以将家变得更生动。带磁力的性能,方便随时更换照片或便签。
女主人爱整洁,对于房屋的收纳又要求很高,基于客厅的宽度有四米多,设计师大胆地在客厅做了一体式电视柜,白色柜面与原木色墙面、地板的拼接,和谐一体,也非常好打理。

开放式的学习区、办公区与休闲区,引入充足的自然光,还便于一家人的沟通。

将主卧室门开向改变位置后,可以更合理地利用主卧和主卫的空间,白色谷仓门打开后,就是女主人期待了很久的独立步入式衣帽间。



U型厨房,具有强大的收纳能力,设计师在前期设计时对冰箱、小家电的尺寸进行了精准把握,不浪费一寸空间。


卫生间贴小白砖好看,小黑砖铺贴出来效果同样惊艳。结合大容量的镜柜和台盆柜,清新实用的布置,给人以清爽舒适的使用体验。

扫码下载APP
享受极家汇更多服务
关注极家汇获取最新活动